Englewood Avenue Renovation + Addition
2020
Photos by Amy Rossi for Riverbank Custom Homes
1st Floor Demo
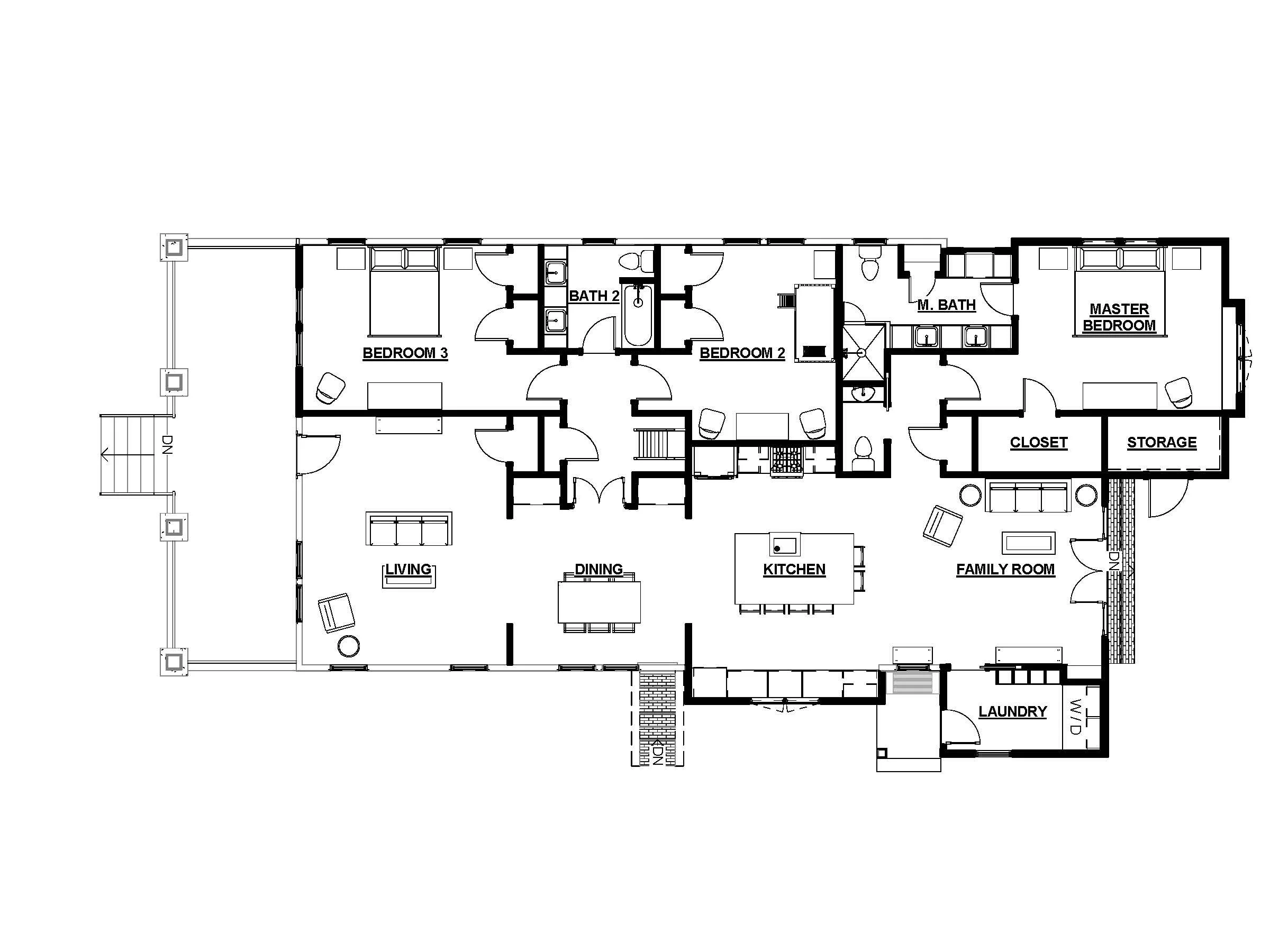
1st Floor